본문 바로가기
주메뉴 바로가기
홈클리닝
입주청소
이사청소
거주청소
부분청소
사이(당일)청소
준프리미엄입주청소
특수클리닝
외창(외벽)청소
화재청소
바닥왁스코팅
쓰레기집청소
조류퇴치
사업장클리닝
사무실ㆍ매장청소
정기청소
준공청소
가전/설비
에어컨분해청소
세탁기분해청소
수도ㆍ배관청소
변기막힘
하수구막힘
부속교체
전문시공
사전점검
새집증후군제거
줄눈
실리콘·코킹
방충망설치/교체
연마/코팅
탄성코트
나노코팅
마루코팅
상판연마
올인원서비스
인테리어
모니카 EXPRESS
가사도우미
정리정돈
가전렌탈
고객센터
문의/예약
시공사례
회사소개
제휴신청
1899-1994
메뉴
1899-1994
메뉴닫기
MONICA CLEAN
고객센터
고객센터
문의/예약
시공사례
회사소개
제휴신청
문의/예약
온라인 견적문의
예약
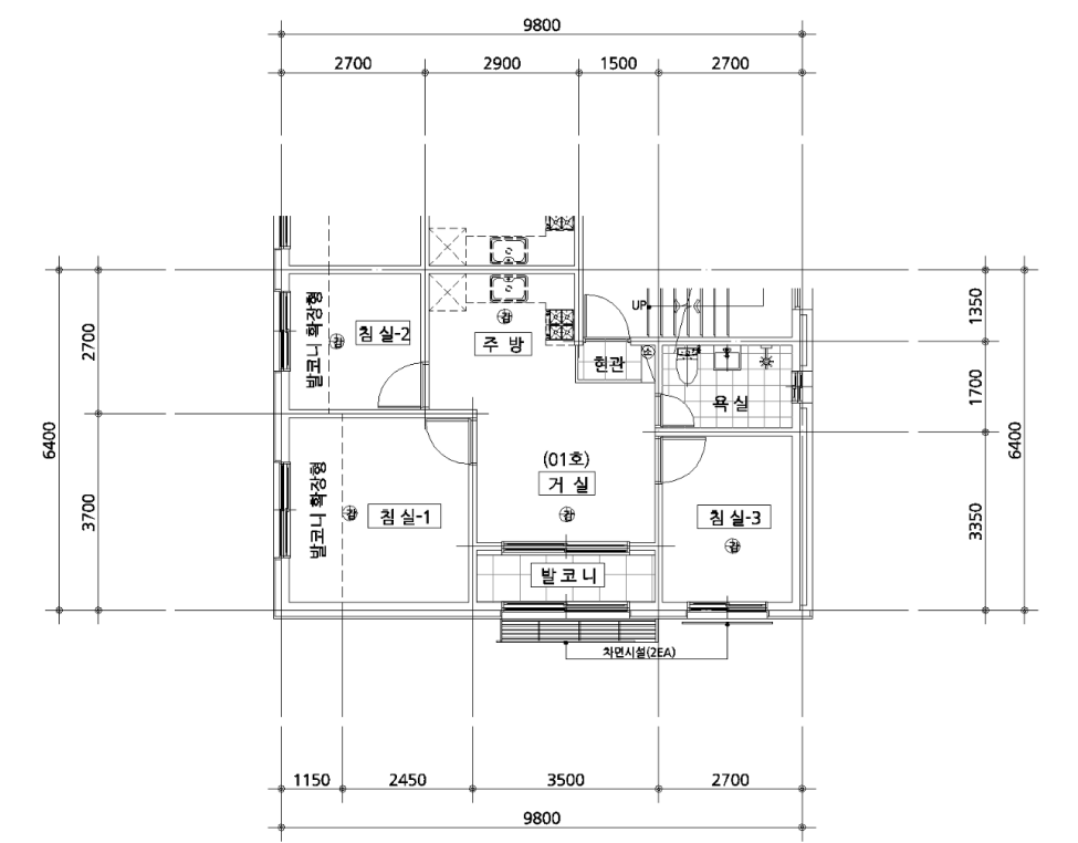
14평 빌라 입주청소 견적문의
르노어
2024-02-17 20:16:05
조회수
153
첨부파일
(
1
)
IMG_5033.png
방3개 화장실 1개 베란다1개 도면 첨부했습니다 엘베 없는 3층 빌라 견적 문의드립니다
지역읜 잠실 이고 3월1일 원합니다
목록
답변
삭제
수정
이전글
줄눈
다음글
14평 빌라 입주청소 견적문의
등록된 댓글이 없습니다.
카톡문의
전화하기
문의/예약
설치/시공